WONING LITO
Architectuur, Interieur
Status: uitgevoerd
Locatie: Gent
Jaar: 2022
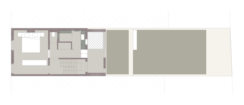
Deze stadswoning voor een gezin van vier onderging een grondige herorganisatie van de functies. De badkamer werd verplaatst van het gelijkvloers naar de eerste verdieping, waardoor op het gelijkvloers de bestaande aanbouw kon worden vervangen door een nieuwe, ruime leefkeuken.
Op de eerste verdieping werd maximaal uitgebreid binnen de toegelaten twee meter, wat plaats bood aan een werkplek, hobbyruimte én een hangmat. Die hangmat werd centraal in een dubbele hoogte opgehangen, waardoor zowel het gelijkvloers als de verdieping een uitgesproken ruimtelijk gevoel krijgen en daglicht diep in de woning kan doordringen.
Het dak op de eerste verdieping werd in twee richtingen opgetild om rekening te houden met de bestaande randvoorwaarden. Deze atypische vorm onderlijnt het architecturale karakter van de woning en laat toe een maximale hoogte voor de vide te realiseren, zonder de bestaande raamopeningen op de tweede verdieping te verstoren.
Het project dankt zijn kracht aan een reeks duidelijke en weloverwogen ingrepen en verfijnde detaillering. Het slank uitgewerkte dakprofiel, de gevel in rood zink, de messing handgrepen en een maatmeubel waarin de dampkap discreet werd geïntegreerd, geven de woning een hedendaags en speels karakter. Ook de badkamer kreeg op een beperkte oppervlakte precies wat nodig was: een grote inloopdouche met zitbank, uitgevoerd in mortex wat rust en een uitgesproken gevoel van ontspanning in de woning brengt.












